cseTools Update vom 10.04.2019

Neue Funktionen und Verbesserungen von bestehenden Funktionen

  1. cseTools: Projekteigenschaften: Erweitert um eine Einstellung des Projektausschnittes (entspricht technisch den LIMITEN). Screenshot
  2. Kanalsanierung: Kostenberechnung, Sanierungskalkulation: Beim automatischen Erzeugen der Einzelsanierung aus den Vorgaben wird nun im Protokoll angezeigt wenn das verwendete Verfahren nicht existiert und übersprungen.
  3. Kanalsanierung: Verwalten, Sanierungsvorgaben: Im Dialog wird nun angezeigt, wenn in den Sanierungsvorgaben Verfahren enthalten sind die nicht existieren/ gefunden wurden.
  4. Kanalplanung: Hydraulik, Zeitbeiwertberechnung: Es erfolgt jetzt eine Protokollierung der Abflusskennzahl für die Summierung Schmutzwasser (siehe Einstellungen, Hydraulik). Screenshot
  5. Kanalplanung: Einstellungen, Hydraulik: Neue Einstellmöglichkeit Abflusskennzahl Schmutzwasser. Hiermit kann eingestellt werden, wie Schmutzwasserabflüsse aus Vorgängerelementen übernommen werden sollen. 1,0 bedeutet Übernahme komplett, wie dies bisher erfolgte. Speziell für die Berechnung von Grundstücksentwässerungsanlagen nach DIN 1986-100 ist hier eine Abminderung bis 0,5 möglich. Screenshot
  6. Kanalsanierung: Kostenberechnung, Sanierungskalkulation: Bei dem Erzeugen einer Maßnahme aus einer Kalkulation werden nun die Bemerkungen der Einzelpositionen mit an die Bemerkung der erzeugten Einzelsanierungen übernommen. Screenshot
  7. Kanal: Exportieren, ISYBAU-XML 2017: Es wird jetzt auch der Außendurchmesser und "Sonderprofil Vorhanden" mit geschrieben.
  8. Kanal + Leitung: Der Linientypfaktor von neu erzeugten grafischen Elementen wird jetzt entsprechend der Variable CELTSCALE gesetzt.
  9. Leitung: Import/Export, Ingrada: AKIA-Einstellungen auf Version 9 von Ingrada angepasst.
  10. cseTools: Trinkwasser, Ingrada-Import: Hier ist jetzt eine spezielle Vorlagedatei verfügbar, die die notwendigen Voreinstellungen für den Import von Ingrada-Wasser-daten enthält.
  11. Kanalplanung: Die Material-Datenbank für Schächte wurde um das Attribut "Wanddicke" erweitert.
  12. cseTools: Neuer Befehl CSESUPPORT: Hier erscheint ein Dialog mit welchem eine Online-Supportmeldung gemacht werden kann. Screenshot
  13. cseTools: Add-on ASCII-Import, Importassistent Seite 3: Die Felder und Werte der Quelle lassen sich im Dialog nun besser überblicken. Screenshot
  14. Kanalplanung: Hydraulik berücksichtigt jetzt Einstellung druckdichter (verschraubter) Deckel. An diesem Schacht kommt es bei der hydraulischen Berechnung nicht mehr zu einem Überstau. Dies wird erreicht, indem INTERN die Deckelhöhe auf eine hydraulisch mögliche Höhe gesetzt wird. Damit kann hier ein höheres Druckgefälle aufgebaut werden und die angeschlossene Haltung einen höheren Durchfluss gewährleisten. Screenshot
  15. Kanalplanung: Hydraulik, Überstaunachweis: Bisher wurden überstaute Schächte auch als Einstauschächte gezählt. Jetzt ist die Anzahl der angegebenen Einstauschächte, Schächte die eingestaut, aber nicht überstaut sind. Die Anzahl der Überstauschächte wird wie gewohnt weiterhin angegeben.
  16. Kanalplanung: Verwalten, Material-Datenbank, Schacht: Man kann nun in der Schachtdatenbank die Wanddicke separat eintragen. Screenshot
  17. Kanal: Anschluss-/Schacht: Im Zuge der Erweiterung der Datenstrukturen um folgende Werte (Wanddicke Schacht, Wanddicke Schachtunterteil, Höhe Deckel, Höhe Hals, Höhe Sohlplatte, Baustoff Deckel und Baustoff Sohlplatte) wurden die entsprechenden Datenbankdialoge und Funktionen angepasst. Screenshot
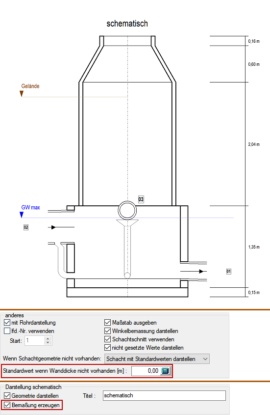
  18. Kanal: Darstellen, Längsschnitt zeichnen: Man kann nun in den Einstellungen unter "Schnitt" die Darstellung der Schachtwand als Doppellinie einschalten. (Es kann auch ein Standardwert für die Wanddicke angegeben werden, falls diese Null ist) Screenshot
  19. Kanalplanung: Darstellen, Schachtskizze: In der schematischen Darstellung wird nun die Schachtwand als Doppellinie dargestellt (in den Einstellungen kann ein Standardwert eingegeben werden der, falls keine Wanddicke im Datenbankdialog angegeben ist, genommen wird). Man kann nun auch in den Einstellungen eine Bemaßung der Bauteile für die schematische Darstellung einschalten. Screenshot
  20. Kanalplanung: Darstellen, Schachtskizze: Man kann nun die obere Tabelle zwischen einspaltig, zweispaltig oder einspaltig mit Foto/Bild in den Einstellungen umschalten. Screenshot
  21. Kanalplanung: Darstellen, Schachtskizze: Man kann nun in den Einstellungen die Titel der Anschriebe zwischen den Bezeichnungen der Haltungen oder der entfernten Schächte umschalten. Screenshot
  22. Kanal: Darstellen, Netz in 3D: Beim Erzeugen der Schachtbauteile wird der Sohlplatte nun der ausgewählte Baustoff zugewiesen. Screenshot
  23. Kanal + Leitung: Auswerten, Netzstatistik: Man kann nun eine vordefinierte Netzstatistikdatei (*.ns) direkt in der Auswahl öffnen. Screenshot
  24. Kanal: Darstellen, Schachtskizze: In der schematischen Darstellung werden nun für alle Zuläufe die Absturzbauwerken gezeichnet.
  25. cseTools: cseTools für BricsCAD V19 (32/64-Bit) bereitgestellt.
  26. Kanalplanung: Darstellen, Schachtskizze: In der schematischen Darstellung wird der Schacht nun mit Wandstärke dargestellt. Screenshot
  27. cseTools: cseTools, Einstellungen: Neue Funktion "Fernwartung starten" im Menü vorhanden. Damit wird bei Bedarf das Kundenmodul für die Fernwartung aufgerufen.
  28. Fließgewässer: HecRas Version 5.0.6 wird jetzt unterstützt (ins Setup übernommen und implementiert).
  29. Leitung: Importieren Ingrada: Haben zu importierende Punkte keine Bezeichnung, so wird dafür jetzt der interne Objektschlüssel verwendet. Bisher wurde diese Punkte nicht importiert.
  30. Leitung: Importieren, Ingrada: Es werden jetzt die Punkt-/Linien-/Text-/Objektarten auch im Format Ebenennummer.Objektart gelesen und entsprechend umgesetzt.
  31. Kanal + Leitung: Materialbezeichnung für Porosit auf Dränbeton (Porosit) entsprechend Arbeitshilfen Abwasser (ISYBAU) angepasst.
  32. Kanal + Leitung: Netztypvorlagedateien um Ränge erweitert. Damit werden die grafischen Elemente mit einer gezielt gesteuerten Zeichenreihenfolge dargestellt (Befehl CSESETDRAWORDER).
  33. cseTools: Bei neuen Projekten werden jetzt die Transaktionen standdardmäßig auf an gesetzt. Bisher war das nur bei Verwendung der cseTools-Vorlage der Fall.
  34. cseTools: Einstellungen, Netztyp, gemeinsame Eigenschaften ändern: Es kann nun auch die Schriftart angegeben werden. Screenshot
  35. Layermanager: Es wird nun der Rang mit angezeigt und kann bearbeitet werden. Screenshot
  36. Kanal + Leitung: Darstellen, Netz in 3D: Es werden nun die in den Daten eingestellten Materialen am 3D-Körper gesetzt. Falls das entsprechende Material noch nicht vorhanden ist, wird dies automatisch hinzugefügt.
  37. cseTools: Darstellen, Netz in 3D: Man kann nun aus dem Protokoll per Doppelklick direkt zum Datenbankdialog des betroffenen Netzelements springen.
  38. Kanalplanung: Berechnen, Tropfenanalyse: wird der Fließpfad über ein gewähltes Netzelement berechnet, zeigt das Protokoll nun auch dessen Bezeichnung an. Screenshot
  39. Kanalplanung: Berechnen, Tropfenanalyse: Das Symbol für die Fließrichtung wird nun mittig dargestellt. Screenshot
  40. Kanalplanung: Berechnen, Tropfenanalyse: man kann nun angeben, auf welcher Ebene der Flusspfad dargestellt werden und welche Farbe und Linienstärke er haben soll. Screenshot
  41. Kanalsanierung: Verwalten, Sanierungsvorgaben Schächte: Die Zuordnung der Sanierungsverfahren ist jetzt auch in Abhängigkeit vom Schachtbereich möglich. Damit kann man für den gleichen Schaden an einem anderen Bereich ein anderes Verfahren verwenden. Screenshot
  42. Kanal: Isybau-XML: In den Zuordnungen für die Umweltparameter Wertezuordnungen vorgenommen. Damit entstehen keine Warnungen mehr beim Export, wenn diese Daten nicht eingegeben werden. Screenshot
  43. Kanal: Importieren, ISYBAU-XML: Das neue Austauschformat 2017/07 kann jetzt importiert werden. Screenshot
  44. Kanal: Exportieren, ISYBAU-XML: Das neue Austauschformat 2017/07 kann jetzt exportiert werden. Screenshot
  45. Kanal: Schemadateien für ISYBAU-XML 07-2017 hinzugefügt.
  46. Kanal: Verwalten, Auswahllisten, Haltung-Wasserschutzzone: Wert '6=Schutzzone I' hinzugefügt.
  47. cseTools: Die durch die cseTools erzeugten Layer haben jetzt auch die Information Rang. Damit kann die Zeichenreihenfolge gesteuert werden.
  48. Kanalplanung: Hydraulik, instationär: Speicherberechnung optimiert (fiktive Schächte liefern keinen Speicheranteil mehr, Berücksichtigung der realen Schachtabmessungen, nur wenn diese nicht vorhanden wird mit einem metrischen Schacht gerechnet).
  49. Leitung: Liste der Standard-Netztypen erweitert (Abwasserdruckleitung, Beleuchtungskabel, Elektrokabel, Fernwärme, Feuerwehrkabel, Gasrohrleitung, Polizeikabel, Stromfreileitung, Telekomkabel, Lichtwellenleiter, Heißwasser, Brauchwasser). Auswahlliste Leitungsart entsprechend angepasst.
  50. Kanal + Leitung: Neue Netztypen für verschiedene Gewerke hinzugefügt. Hier werden speziell die neuen Linienarten (Kabel, Fernwärme, Gas, etc.) unterstützt.
  51. cseTools: Neue Linienarten in Auslieferung aufgenommen (cseTools.lin und dazugehörige shx-Dateien). Die Verwendung dieser Liniearten über die Netztypdateien erfolgt automatisch (Linienart wird automatisch aus cseTools.lin geladen).
  52. Kanalplanung: Hydraulik: Kommentare im Protokoll der Berechnungen jetzt mit Angabe der "minimalen Schmutzwasserlast" (wenn vorhanden).
  53. cseTools: Layererstellung optimiert: Layer im System (Befehl LAYER) erst vorhanden, wenn sie verwendet werden.
  54. Layermanager: Man erkennt nun anhand der Icon's im Baum welches der aktuelle Layer oder ein Xref-Layer ist. Screenshot
  55. cseTools: Neuer Befehl 'cseSetDrawOrder': Damit kann die Zeichenreihenfolge der gesamten DWG unter Auswertung der Ränge neu gesetzt werden. Bisher werden die Ränge beim Erzeugen von Blöcken und Flächen automatisch ausgewertet und gesetzt. Alle anderen Ränge blieben unberücksichtigt. Durch Aufruf dieses Befehles kann dies jetzt umgesetzt werden.
  56. Kanal + Leitung: Berichtsmanager: es können nun mehrere Einträge pro Zeile angezeigt werden Screenshot
  57. Kanal + Leitung: FastReport-Attributliste: Firmen- und Auftraggeberdaten der Zeichnung können jetzt in die Reports eingebunden werden. Screenshot
  58. cseTools: Neuer Befehl 'cseLwScale': Damit kann die Linienstärke aller Layer und aller Elemente im Modellbereich skaliert werden. Es wird ebenfalls der Vorgabewert für die Linienstärke angepasst.
  59. Leitungsplanung: Berechnen, Kollisionen ermitteln: ein Dialog zur Ermittlung von Kollisionen zwischen Netzelementen wurde hinzugefügt. Screenshot
  60. Kanalplanung: Berechnen, Kollisionen ermitteln: ein Dialog zur Ermittlung von Kollisionen zwischen Netzelementen wurde hinzugefügt. Screenshot
  61. Kanalplanung: Darstellen, Schachtskizze: Rahmen um Anschieb der Ein-/ Ausläufe sind nun abschaltbar. Screenshot
  62. Kanal: Darstellen, Schachtskizze: Deckel wird nun entsprechend der Ausrichtung des Deckelsymbols dargestellt.
  63. Fließgewässer: Einstellungen, Netztyp: Es wird nun überprüft, ob der Layer "Fliessgewaesser" ausgeschaltet ist und ggf. eingeschalten.
  64. Leitung: Einstellungen, Netztyp: Es wird nun überprüft, ob der Layer "Leitung" ausgeschaltet ist und ggf. eingeschalten.
  65. Kanal: Einstellungen, Netztyp: Es wird nun überprüft, ob der Layer "Kanal" ausgeschaltet ist und ggf. eingeschalten.
  66. Kanal + Leitung: Einstellungen, Netztyp, gemeinsame Eigenschaften ändern: Linieneigenschaften können jetzt ebenfalls geändert werden. Screenshot

Fehlerkorrekturen

  1. cseTools: Zeichnungseigenschaften, Produkt: Wenn nur eine Demoversion verwendet wird, steht in den Zeichnungseigenschaften bei Produkt = Vollversion. -> korrigiert
  2. Kanalkataster: Darstellen, Befahrungsvideo: Probleme mit MediaPlayer -> korrigiert
  3. cseTools: cseTools: Für Flächen (EZGs, Haltungsfüllung etc.) werden die Flächentypen "Hintergrund" und "transparent" u. U. nicht richtig dargestellt. -> korrigiert
  4. cseTools: Reduziertes Laden: Der Aufruf "CSESTART" lädt. die falsche cseApp_64.arx oder findet diese nicht. -> korrigiert
  5. cseTools: Bei einer Nachkonfiguration der aktuellen Installation werden u. U. alle Konfigurationen der cseTools entfernt sodass eine De- und Neuinstallation erforderlich ist. -> korrigiert
  6. cseTools: Schriftstil kursiv funktioniert nicht Die Einstellung der Neigung hat nicht den gewünschten Einfluss auf das Schriftbild. -> korrigiert
  7. Kanal: Darstellen, Längsschnitt - Zeichnen: Liegt die Schachtsohle deutlich tiefer als die tiefste anliegende Haltungssohle, wird die Schachtwand nicht vollständig gezeichnet. -> korrigiert
  8. Kanal + Leitung: Verwalten, Auswahllisten, Material: Rechtschreibfehler im Material PP ("Polyprophylen"-> "Polypropylen"). -> korrigiert
  9. Kanal: Darstellen, Längsschnitt - Zeichnen: Bei Schnittrichtung "von rechts nach links" wird die Wanddicke falsch eingezeichnet. -> korrigiert
  10. Kanalplanung: Darstellen, Schachtskizze: Ist die Sohlhöhe des Hauptauslaufs niedriger als die Sohle des Schachtes, kommt es zu einer falschen Darstellung in der Vorschauansicht. -> korrigiert
  11. Kanalplanung: Instationäre Hydraulik: Korrektur bei der Speicherberechnung von durch Rückstau teilbelasteten Haltungen. (bisher trat u.U. auf, dass die Speicherberechnung dieser Haltung dazu führte, dass der Durchfluss auf 0 fiel)
  12. Kanal + Leitung: Importieren, Projekt: Der Import Kanal-/Leitungsprojekt schaltet nicht automatisch auf das Protokoll-Register im Dialog um, wenn der Import abgeschlossen ist. -> korrigiert
  13. Kanalplanung: Darstellen, Schachtskizze: Deaktiviert man in den Einstellungen für den Schnitt die Ausgabe der Bezeichnung in der Tabelle, kommt es zur Verschiebung und die Positionsnummern sind nicht mehr lesbar. -> korrigiert
  14. Kanalkataster: Darstellen, Schadensprotokoll Schächte/Anschlussleitungen: Im Dialog steht bei der Auswahl der Anzeige "nach Haltungen" statt "nach Schächten"/"nach Anschlussleitungen" -> korrigiert
  15. Kanal + Leitung: Darstellen, Längsschnitt Zeichnung: Das Einpassen der Texte in sehr kurze Legendenboxen wurde optimiert.
  16. Kanal + Leitung: LS-Zeichnen - u.U. Texte auf dem Kopf: Bei besonders kurzen Leitungen/Haltungen können unter Umständen Legendentexte auf dem Kopf dargestellt werden. Das ist abhängig vom Längenmaßstab der Einpassungseinstellung usw. -> korrigiert
  17. Kanalsanierung: Darstellen, Sanierungsprotokoll Schacht: Es werden die Bezeichungen der Sanierungsverfahren für Haltungen verwendet. -> korrigiert
  18. Kanal: Export, Isybau XML: Dektiviert man beim IsyBau XML Export Unterknoten (z.B. Sanierungen) werden diese trotzdem ausgegeben. -> korrigiert
  19. Kanalsanierung: Kostenberechnung, Sanierungskalkulation: Erzeugen Einzelpos. beachtet "markiert/gefiltert/alle" nicht. Es werden einfach immer für alle Netzelemente die Einzelpositionen erzeugt. -> korrigiert
  20. Kanal + Leitung: Bearbeiten, Drehen, Texte: Texte lassen sich in neuen Projekten nicht drehen. -> korrigiert (es gab eine Überschneidung mit der umgesetzten Rangigkeit)
  21. Kanalplanung: In der Material-Datenbank für Schächte wurden für "F 700x6", "U 700N6" die Bauteile korrigiert und bei folgenden Schächten die Länge/Breite angepasst: "U 150N6", "U 200N6", "U 300N6", "U 400N6", "U 500N6", "U 600N6", "U 700N6", "U 800N6", "U1006N6".
  22. cseTools: Datenbank: Ist im Suchbaum eines DB-Dialoges ein Suchfilter eingegeben und es wird bei offenem Dialog über "Netzelement tippen" ein anderes Netzelement getippt, dann wird das im Suchfilter eingestellte und nicht das getippte Netzelement angezeigt. -> korrigiert
  23. Kanal: Exportieren, ISYBAU-XML und DWA-M150, Zuordnen: Soll einem Feld, wo es eine separate "Zuordnung der Werte für die Referenztabelle" gibt, ein anderes Attribut ausgewählt werden stürzt das Programm mit Zugriffsverletzung ab. -> korrigiert
  24. Kanal: Exportieren, ISYBAU-XML: Beim Export einer ISYBAU-XML 2017 Datei wird für jeden Schacht die Deckel aller Schächte exportiert. -> korrigiert
  25. Kanalplanung: Verwalten, Mat-DB, Schacht: Das neue Feld Wandstärke in der Schachtdatenbank ist nicht gefüllt und auch nicht Speicherbar. -> korrigiert
  26. Leitungskataster: SHAPE-GIS Export: Beim Export tritt u.U. die Fehlermeldung "cse: TKanLeiObject.GetPropVal: attr not found" auf. -> korrigiert
  27. Leitung: Ingrada Konverter - AKIA Einstellungen - Ebeneneinstellung nur bis 2499 möglich, laut Katalog aber bis 2789. -> korrigiert
  28. cseTools: Einstellungen, Netztyp: Beim Öffnen der Liste verfügbarer Fonts zum Ändern, tritt u. U. eine Zugriffsverletzung auf. -> korrigiert
  29. cseTools: Auftreten von Dateninkonsistenz nach Verwenden der systemeigenen Rückgängig-Funktion. -> korrigiert
  30. Kanalplanung: Aushub, Datenbank-Schacht/-Anschluss-Schacht: Knopf "Übernahme Sohlschicht aus Schachtdaten" falsch verankert und der Hint fehlt. -> korrigiert
  31. Kanalplanung: Darstellen, Schachtskizze: Beim Erzeugen der Schachtskizze in separater Zeichnung wird dies mit der Fehlermeldung "cse: Database not connected, application not started!" abgebrochen. -> korrigiert
  32. Kanal + Leitung: Fehlermeldung bei Aufruf LS-Zeichnen: Versucht man eine LS-Zeichnung zu erzeugen, ist diese leer und es kommt die Meldung "cse: Database not connected, application not startet!". -> korrigiert
  33. Kanal: Auswertung, Netzstatistik, Bearbeiten, Öffnen: Schreibfehler in der Meldung beim Öffnen einer Datei. -> korrigiert
  34. Kanalplanung: Darstellung, Schachtskizze: Der Standardwert, wenn die Wanddicke nicht vorhanden ist, wird nicht richtig vorinitialisiert. -> korrigiert
  35. Kanalplanung: Exportieren, ISYBAU-XML: Beim Export nach ISYBAU 2017/07 treten u. U. Fehlermeldungen auf -> korrigiert
  36. Kanalplanung: Berechnen, Tropfenanalyse: Ist kein Geländemodell eingestellt oder vorhanden, sind trotzdem die Knöpfe zum Ermitteln des Flusspfades aktiv. -> korrigiert
  37. cseTools: Add-on, ASCII-Import: Auf der zweiten Seite des Importassistenten geht der obere Trennstrich beim breiter ziehen des Dialogs nicht mit. -> korrigiert
  38. Kanal: Importieren, ISYBAU-XML: Beim Importieren von Anschlussschächten werden u.U. nicht alle Koordinaten und Höhen übernommen. Es waren nicht alle Punktarten für Anschlüsse in der Zuordnung (Standard.isv) enthalten. -> korrigiert
  39. Kanalkataster: Verwalten, Datenprüfung Beim Laden einer Datenprüfung wird in jeder Kategorie wo min. ein Prüfwert vorhanden ist, ein weiterer, leerer hinzugefügt. -> korrigiert
  40. Kanalkataster: Importieren, DWA-M150: Ist in der M150 Datei auf dem Feld HI005 keine Angabe zum verwendeten Kodiersystem vorhanden, erscheint die Protokollmeldung dass "DIN-EN 13508-2" verwendet wird. Letztlich ist in der Untersuchung aber "ISYABU 2001" eingestellt. -> korrigiert
  41. Kanalkataster: Exportieren, ISYBAU-XML: Beim Exportieren von Daten mit Untersuchungen/Zustandsdaten, wird das Untersuchungsdatum nicht in die ISYBAU-XML Datei geschrieben. -> korrigiert
  42. Kanal: Auswerten, Netzstatistik, Bearbeiten: Wird Rechtsklick auf einen Eintrag gemacht und anschließend auf eine leere Fläche geklickt ohne eine Funktion aus dem Kontextmenü auszuwählen, tritt eine Zugriffsverletzung auf. -> korrigiert
  43. Kanalplanung: Darstellen, Schachtskizze: In der schematischen Darstellung werden die Steigeisen gezeichnet, wenn der Haken "Einstiegshilfe" bei der Schachtgeometrie aktiviert ist. -> korrigiert
  44. Kanal + Leitung: Add-on SHAPE-Export: Der Export bringt bei Verwendung unter 64-Bit Zugriffsverletzungen und es gibt kein ordentliches Exportergebnis (NativeInt-Fehler behoben).
  45. Leitung: Knotendetail im Lageplan: Bauteile nicht zu sehen bei schwarzem Hintergrund. Die einzelnen Grafikelemente haben die Einstellung Farbe RGB:0,0,0 und nicht "VonLayer". -> korrigiert
  46. Kanalkataster: Auswerten, Netzstatistik: Wird eine neue Netzstatistik erstellt und eine vorhandene Netzstatistikdatei (*.ns) geladen, wird diese Netzstatistik nicht gespeichert. -> korrigiert
  47. Kanalkataster: Auswerten, Netzstatistik: Der Slider zwischen dem linken und rechten Bereich hat keine Begrenzung, sodass der rechte Bereich zu klein gezogen werden kann und die Einstellmöglichkeiten unbenutzbar werden. -> korrigiert
  48. Kanalkataster: Exportieren, ISYBAU-XML: Es kommt u.U. zu einer Zugriffsverletzung "TProp.__PropList:..." beim exportieren. -> korrigiert
  49. cseTools: Projekteigenschaften: Bei den Werkzeugen steht "Prüfung cseTool-Daten". -> korrigiert
  50. Kanal: Darstellen, Schachtskizze: Wenn RAP's gesetzt sind, werden die Absturzsymbole in der Schachtuhr falsch positioniert. -> korrigiert
  51. cseTools: Protokollkomponente: Ausgabepanel nicht mehr auf ganzer Breite. -> korrigiert
  52. Leitung: Import von Daten: Beim Importieren wird bei Einbauelementen nicht das richtige Symbol verwendet. Erst nach einem nochmaligen Import ist es richtig gesetzt. -> korrigiert
  53. Kanal: Verwalten, Materialdatenbank, Bauteil: Wenn beim Erzeugen eines neuen Elements die Frage, ob "Inhalte aus aktuellem Datensatz übernommen" werden sollen, verneint wird, werden die Inhalte trotzdem übernommen. -> korrigiert
  54. Kanal: Verwalten, Materialdatenbank, Schacht: Wenn beim Erzeugen eines neuen Elements die Frage, ob "Inhalte aus aktuellem Datensatz übernommen" werden sollen, verneint wird, werden die Inhalte trotzdem übernommen. -> korrigiert
  55. Kanalkataster: Darstellen, Befahrungs-Video: Problem beim öffnen/ umschalten eines Videos mit dem VLC-Player. -> korrigiert
  56. Kanalkataster: Lage des Haltungsschadens im Lageplan u.U. ungenau: Entspricht der Abstand eines Rohranschlusspunktes nicht dem Wert Anfangsstation in den Befahrungsdaten so kommt es zu einem Versatz in Größe dieser Differenz. -> korrigiert
  57. Kanal: Importieren, ISYBAU XML: Importieren der Daten dauert deutlich länger. -> korrigiert
  58. Kanalplanung: Hydraulik, instationär: Bei Vorhandensein von Grenzwasserspiegeln durch z.B. Einleitstellen, kam es zu einem ungewollten Abflußverhalten wenn es sich um einen unbelasteten Strang handelt. -> korrigiert
  59. Kanalkataster: Auswerten, Netzstatistik, Bearbeiten: Beim Löschen eines Eintrags vom Typ "Netzelement" werden alle Einträge gelöscht und eine Zugriffsverletzung protokolliert. -> korrigiert
  60. Kanal + Leitung: Bearbeiten, Erzeugen, Winkelpunkt/Knickpunkt: Ist ein Rohranschlußpunkt gesetzt, wird dieser beim Erzeugen nicht berücksichtigt. Das Gummiband wird auf die Schachtmitte gezogen. -> korrigiert
  61. Kanal + Leitung: Bearbeiten, Erzeugen, Winkelpunkt/Knickpunkt: Die Vorgabe einer Abwinkelung ist schon beim ersten Winkelpunkt/Knickpunkt aktiv. -> korrigiert
  62. SQL-Datenbank: Wenn die Transaktionen ausgeschaltet waren, konnte es u. U. dazu kommen, dass Daten nicht in die Datenbank geschrieben wurden. -> korrigiert
  63. Kanalplanung: Darstellen, Netz in 3D: Quaderförmige Hohlkörper sind u.U. an einer Seitenfläche offen. -> korrigiert
  64. cseTools: Projekteigenschaften: Der Standardpfad wird im Auswahldialog nicht voreingestellt. -> korrigiert
  65. Kanal: Exportieren, ISYBAU-XML, Transformation: Beim Öffnen des Dialogs für die Transformationseinstellungen, kommt es zu Zugriffsverletzungen. Tritt nur bei mehrfachem Aufruf der Tranformation auf. -> korrigiert
  66. Kanalplanung: Bearbeiten, Erzeugen, Schacht-/Anschluss-Schacht einfügen: Rohranschlusspunkte werden nicht berücksichtigt! -> korrigiert
  67. Kanalplanung: Verwalten, Material-Datenbank, Schacht: Das Kopieren oder Anlegen neuer Datensätze mit Inhalt funktioniert nicht! -> korrigiert
  68. Kanalplanung: Auslastungsgrad beim Bemessen - nur gespeichert bei Verlassen Dialog: Im Dialog "Hydraulik"->"Bemessen Haltung", wird der voreingestellte Auslastungsgrad aus den Parametern Hydraulik geholt. Stellt man hier einen anderen ein, wird nach dem Bemessen einer Haltung wieder auf den Ursprünglichen (aus den Parametern) zurückgestellt. -> korrigiert
  69. Kanalkataster: Anschluss aus Schaden setzt nur Profilhöhe: Erzeugt man aus einem Inspektionscode BCA... mit einer Profilhöhenangabe eine Anschlussleitung über die Funktionalität "Anschluss aus Schaden", dann wird für die Anschlussleitung das Profil auf Kreis gesetzt und die Höhe übernommen. Die Profilbreite bleibt 0. -> korrigiert
  70. cseTools: Unterschiedliche Farbeinstellungsdialoge in Netztypeinstellungen: Bei der Farbauswahl in den gemeinsamen Eigenschaften wird ein anderer Farbauswahldialog angeboten als bei der Farbauswahl auf der Registerkarte Darstellung im Netztypdialog. -> korrigiert
  71. cseTools: Bereichsdefinition - kein Tippen möglich: Wenn man den Umbenennen-Dialog über den Knopf Bereichsauswahldialog aufruft, dann kann man in der Bereichsauswahl nichts Tippen - keine Funktion des Knopfes. -> korrigiert
  72. Kanal: Darstellen, Netz in 3D: Darstellung der Schachthälse u. U. fehlerhaft. -> korrigiert
  73. Kanalplanung: Verwalten, Material-Datenbank, Bauteil: Das Kopieren oder Anlegen neuer Datensätze mit Inhalt funktioniert nicht! -> korrigiert
  74. Kanal + Leitung: Darstellen, Netz in 3D: Das Protokoll selbst ist wesentlich größer als der Bereich im Dialog, wo das Protokoll enthalten ist. -> korrigiert
  75. Kanal: Darstellen, Netz in 3D: Beim Doppelklick auf ein Netzelement im Protokoll, wird kein Datenbankdialog geöffnet. Fehler "cse: TBDlgByObj: classhandle=nil" -> korrigiert
  76. Kanalkataster: u.U. Absturz nach Löschen USG, bei Aufruf Bewertungsdialog: Löscht man im DB-Dialog eine Untersuchung dann stürzt u.U. die Software beim erneuten Öffnen des Bewertungsdialogs ab. -> korrigiert
  77. cseTools: Absturz AutoCAD beim Speichern nach Befehl cseStart: tritt auf unter AutoCAD18 mit cseTools Rel. 258 -> korrigiert
  78. Kanal: Darstellen, Längsschnitt - Zeichnen: AutoCAD stürzt beim Zeichnen eines Längsschnitts ab. -> korrigiert
  79. Leitung: Darstellen, Netz in 3D: Beim Erzeugen von Leitungen wird der Innendurchmesser als Außendurchmesser verwendet. Das ist falsch, die Wanddicke muss dazugerechnet werden. -> korrigiert
  80. Kanal + Leitung: Auswerten, Leistungsverzeichnis: Gibt man ein LV aus (csv-Datei) steht da als Menge immer 0 drin. Ursache ist, dass in der Attributdefinition der Mengenwerte eine Konstante als Text nicht richtig verwendet wird (siehe Screenshot). -> korrigiert
  81. cseTools: Netztypeinstellungen, Textparameter übernehmen keine Funktion: Eine interne Funktion meldete einen Fehler obwohl kein Fehler vorlag. -> korrigiert
  82. Leitungsplanung: Knotendetail in separate Zeichnung: Die Knotenbezeichng ist auf allen Details in der Zeichnung gleich. -> korrigiert
  83. Leitungsplanung: LP - Knotendetail Legende: Textgröße der Legende des Knotendetails ist mit den Standardwerten deutlich zu klein. -> korrigiert
  84. Leitungsplanung: Darstellen, Knotenpunkte: Formular für die Stücklistenausgabe geringfügig korrigiert. Es wurde immer das Wort 'Ort' im Kopf mit ausgegeben aufgrund einer falschen Vorgabe.
  85. Layermanager: Angelegter Layer konnte, trotzdem darauf keine Elemente sind, nicht wieder gelöscht werden. -> korrigiert
  86. Kanalplanung: Einstellungen, Regenmodell: Ändert man die Wiederkehrzeit erfolgt eine Abfrage, ob die Niederschlagsmengen neu berechnet werden sollen. Dies wurde für Euler 2 90 und 120 Minuten und Chicagoregen nicht durchgeführt. -> korrigiert
  87. cseTools: Lizenzadministration: Der Button zum Einspielen von Lizenzinformationen war aktiv wenn kein Lizenzserver verfügbar war -> korrigiert
  88. cseTools: Einstellungen, Netztyp, gemeinsame Eigenschaften ändern: die Dezimalwerte werden immer auf 2 Nachkommastellen gerundet -> korrigiert
  89. cseTools: SHAPE-Export: Ist kein Zielverzeichnis ausgewählt, wird der Klick auf "Weiter" mit einer Zugriffsverletzung quittiert. -> korrigiert
  90. Kanal + Leitung: Darstellen, Längsschnitt: Beim Erstellen eines Längsschnitts oder LS-Entwurf wird gefragt, ob die Daten in der DWG oder Datenbank gespeichert werden sollen. -> korrigiert
  91. cseTools: Modul kann nicht gestartet werden: U. u. wird der Start eines Moduls mit der Meldung "Database not connected, application not started!" abgebrochen. -> korrigiert
  92. Kanalplanung: Schachtskizze - Anschlussleitung mit Absturz: Wenn eine Anschlussleitung mit Absturzdefinition in einen Schacht einbindet wird der Absturz nicht in der Schachtskizze dargestellt. -> korrigiert
  93. Kanalkataster: Öffnen eines beliebigen Datenbankdialoges, Schadensprotokoll oder Befahrungsvideo bringt zahlreiche Fehlermeldungen (unkritisch). -> korrigiert
  94. Kanalplanung: Darstellen, Schachtskizze: Darstellung fehlerhaft bei vert./horiz. Zu-/Abläufen -> korrigiert
  95. cseTools: cseTools unter AutoCAD: Layer werden u. U. nicht richtig gefunden und deshalb mit Standard-Parametern neu erzugt. -> korrigiert
  96. Kanalkataster: Datenbank, Zustandsdaten Haltung: Video Gegenbefahrung u.U. nicht zu sehen. -> korrigiert
  97. Kanalplanung: Der Hydraulikparameter "minimale Schmutzwasserlast" war nicht richtig implementiert. Es wurde eine minimale Schmutzwasserlast pro Haltung verwendet, d.h. der Wert wurde netzfolgend immer wieder addiert. -> korrigiert Jetzt wird der Wert so verwendet, dass die vorhandene Schmutzwasserbelastung der Haltung auf diesen wert angehoben wird, wenn sie kleiner ist.
  98. Kanalkataster: Importieren, Kanal-Projekt: Sollen auch Daten der Sanierungskalkulation importiert werden und ist die Objektauswahl gefiltert, werden nicht alle Netzelemente und keine Netzelementvarianten importiert. -> korrigiert
  99. cseTools: Bearbeiten, Erzeugen, Schacht/Anschlus-Schacht/Knoten einfügen: Falsches Verhalten bei Schließen des Dialogs mit Esc-Taste. -> korrigiert
  100. Layermanager: Layer sind u.U. nicht löschbar. -> korrigiert
  101. Layermanager: falsche Anzeige der Layer bei eingebundenen XRef's -> korrigiert
  102. Kanalkataster: Darstellen, Schadensprotokoll Haltung: Wird die Haltung über mehrere Seiten gezeichnet, wird die Haltungsskizze falsch dargestellt und es werden nachfolgende Seiten leer erzeugt. -> korrigiert
  103. Kanal: Einstellungen, Schadens- / Sanierungsprotokoll: Der Dialog hat u.U. eine zu geringe maximale Höhe um alle Eingabefelder darzustellen. -> korrigiert
  104. Kanal + Leitung: Leistungsverzeichnis, def. Mengenwerte: mehrdeutige Kriterien (z.B. "kleiner gleich", "exisistiert" ...) werden nicht richtig verarbeitet. -> korrigiert
  105. cseTools: Netztypbezogene Banddarst. im LS u.U. nicht wie im Netztyp definiert -> korrigiert
  106. Kanal: Darstellen, Netz in 3D: Ausrichtung Deckel nicht entsprechend der Ausrichtung des Deckelsymbols -> korrigiert
  107. Mobile Erfassung: Tippen hat keine Funktion: Aktiviert man die Tippen Funktionalität und klickt dann in die Grafik passiert scheinbar nichts. -> korrigiert
  108. Kanalplanung: Bearbeiten, Umbenennen: Scheinbar keine Reaktion bei der Bereichsauswahl, wenn der "Bereiche erzeugen"-Dialog (Bearbeiten->Bereiche) bereits geöffnet ist. -> korrigiert
  109. cseTools: Modulstart Leitungsplanung und -bestandserfassung nicht startbar
  110. Kanal + Leitung: Schnellzugriff, Layout Ausgeben: Unter AutoCAD bleibt das Ansichtsfenster leer. -> korrigiert
  111. Kanalplanung: Berechnen, Tropfenanalyse: Unter verwendung eines Civil-3D-DGM's kam es zu einer Fehlermeldung. -> korrigiert
  112. Kanalplanung: Berechnen, Tropfenanalyse: Icon für die Funktion fehlt. -> korrigiert
  113. Kanalplanung: Berechnen, Tropfenanalyse: Da die Flusspfade dem cseSchutz unterliegen, sollte es eine Funktion zum Löschen der Flusspfade geben. -> korrigiert
  114. Kanalplanung: Berechnen, Tropfenanalyse: Überall steht der Hinweis, dass der Flusspfad auf dem aktuell eingestellten Layer erzeugt wird. Das trifft aber nicht zu (wird immer auf Layer 0 erzeugt). -> korrigiert
  115. Kanalplanung: Berechnen, Tropfenanalyse: Das Icon für die Wahl eines freien Punkts ist das gleiche wie für "Auswahl Netzelement". -> korrigiert
  116. Kanalplanung: Berechnen, Tropfenanalyse: Anker für die Dropdown-Box zur Horizont-Auswahl falsch gesetzt. -> korrigiert